Guillermo Garza is a Mexican-American designer in Brooklyn, New York
He obtained a B.A in Architecture at Pratt Institute, with a Minor in Museum and Gallery Studies .
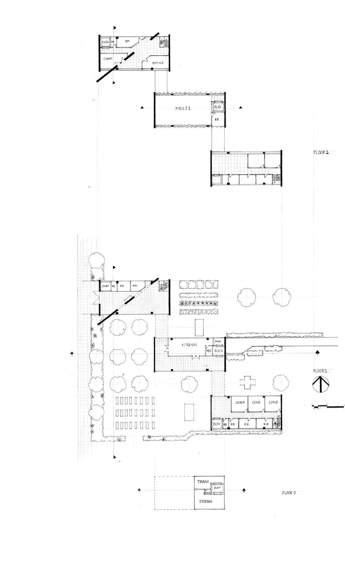
San Pedro Convention Center
San Antonio Community College
Spring 2019
Design II
Professor: Michael Connor
Method: Hand Drafting
San Antonio Community College
Spring 2019
Design II
Professor: Michael Connor
Method: Hand Drafting
The project focused on designing a convention center for San Antonio Community College. The project was based off of Donald Judd’s Untitled piece in Marfa, Texas. The complex cosists of a trilogy of buildings that are placed on a garden, surrounded by a precinct, enhanced with native greenery and outdoor spaces.
![]()


Untitled - Donald Judd![]()
















